Current Projects - Marlborough Court

Marlborough Court Drawing

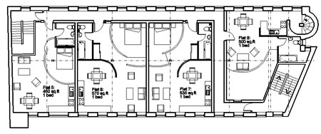
Detail of Marlborough CourtDetail of Marlborough Court



MMP Chartered Architects
No 4 Thorp House • Thorp Street • Macclesfield • Cheshire • SK10 1LJ